Клапан обратный 16ч6п (PN 16, DN 40-200)
Технические характеристики:
Оставьте заявку на позицию "Клапан обратный 16ч6п (PN 16, DN 40-200)" на данной странице. Наш менеджер свяжется с Вами и уточнит условия заказа.
Назначение
Клапан обратный подъемный фланцевый из серого чугуна 16ч6п применяется на трубопроводах для предотвращения обратного потока среды.
Клапан должен использоваться строго по назначению в соответствии с указаниями в техническом паспорте.
Устройство и работа изделия
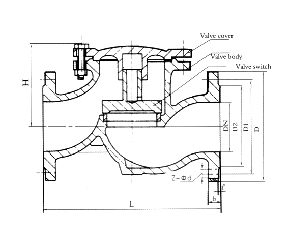
Клапан состоит из следующих основных деталей и узлов: корпус, крышка, узел затвора.
Принцип действия клапана: при подаче среды золотник открывается, при прекращении подачи среды золотник опускается на уплотнительную поверхность корпуса и предотвращает обратный поток среды.
Общие указания
Перед монтажом клапана необходимо проверить легкость и плавность движения золотника и произвести гидравлическое испытание водой Ру 1,6 МПа (16 кгс/см2).
Указания мер безопасности
Запрещается производить работы по устранению дефектов при наличии давления в трубопроводе.
Применение клапанов на другие среды и параметры, не соответствующие настоящей инструкции, не допускается.
Правила хранения
Клапаны должны храниться в складских помещениях или под навесом.
Порядок установки
Установочное положение клапана: на горизонтальном трубопроводе крышкой вверх, с направлением потока среды вверх, с направлением потока среды под золотник.
Клапаны устанавливаются на трубопроводах в местах, доступных для осмотра и обслуживания.
При установке клапана на открытом воздухе необходимо обеспечить его защиту от воздействия атмосферных явлений и механических повреждений. Направление рабочей среды должно совпадать с направлениями стрелки на корпусе. Протекающая по трубопроводу среда не должна содержать механически примесей, которые могут повредить уплотнительную поверхность затвора.
Трубопровод должен иметь компенсаторы.
Характеристики
- Обозначение - 16ч6п
- Давление рабочее, МПа - 1,6
- Температура рабочей среды, С - ≤200
- Рабочая среда - вода, нефть, пар, неагрессивные среды
Данная информация на сайте не является публичной офертой
